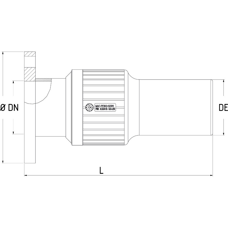
PE/ACCIAIO DRITTO CON TERMINALE FLANGIATO

WATER use
Raccordo di transizione PE/acciaio con terminale flangiato secondo EN 1092-1. Realizzato tramite stampaggio ad iniezione, viene impiegato per il collegamento di materiali differenti (di cui uno sia polietilene) su impianti di tubazioni per il trasporto di acqua di condotta.
PN 16 bar
PN
SDR 11

Materiali
  • Tronchetto in acciaio al carbonio secondo ISO 3183/API 5L con protezione dalla corrosione tramite zincatura elettrolitica bianca interna ed esterna,
  • Codolo in polietilene alta densità PE100,
  • O-ring in NBR 70 Sh,A certificato gas e acqua potabile (DVGW),
  • Anello esterno di tenuta in acciaio S355J2H verniciato a polvere (sp.200µm).
Certificazioni
Annotazioni tecniche
  • Giunzione metallo/PE conforme alla UNI 9736, a passaggio totale,
  • Collaudato con prove a pressione secondo ISO 1167 e ulteriore specifica di collaudo MACPLAST,
  • Dimensionale polietilene secondo UNI EN 12201-3, spessore standard SDR11,
  • Dimensionale metallo secondo ISO 3183,
  • Terminale flangiato secondo EN 1092-1.
Caratteristiche aggiuntive
  • Dotato di o-ring di sicurezza interno.
Altre informazioni
  • Raccordi stampati fino al DE225 x 8",
  • I grandi diametri sono realizzati tramite assemblaggio meccanico con anello esterno di tenuta,
  • A richiesta codolo in S8 (SDR17) dal DE250x8".
Normative
  • UNI EN 12201-3
  • ISO 4427-3
  • EN 1092-1 / ISO 7005

Dimensionali

Codice DE (mm) DN (inch) DN (mm) PN Ø (mm) L (mm) Peso (kg)
0864200200 200 8" 200 PN 10 155 430 13.00
0864225200 225 8" 200 PN 10 170 430 13.00
0864250250 250 10" 250 PN 10 191 440 16.90
0864280250 280 10" 250 PN 10 206 440 16.40
0864315300 315 12" 300 PN 10 226 460 21.00
0866050040 50 1 1/2" 40 PN 10/16 226 280 2.80
0866063050 63 2" 50 PN 10/16 256 280 3.60
0866075065 75 2 1/2" 65 PN 10/16 291 340 4.40
0866090080 90 3" 80 PN 10/16 291 380 4.90
0866110100 110 4" 100 PN 10/16 346 380 5.90
0866125100 125 4" 100 PN 10/16 346 380 5.80
0866140125 140 5" 125 PN 10/16 410 380 7.10
0866160150 160 6" 150 PN 10/16 410 410 9.60
0866180150 180 6" 150 PN 10/16 456 410 9.50
0866200200 200 8" 200 PN 16 346 430 13.10
0866225200 225 8" 200 PN 16 346 430 13.10
0866250250 250 10" 250 PN 16 415 440 19.70
0866280250 280 10" 250 PN 16 415 440 19.20
0866315300 315 12" 300 PN 16 465 460 27.80